- Descrizione
- Caratteristiche
- Mappa
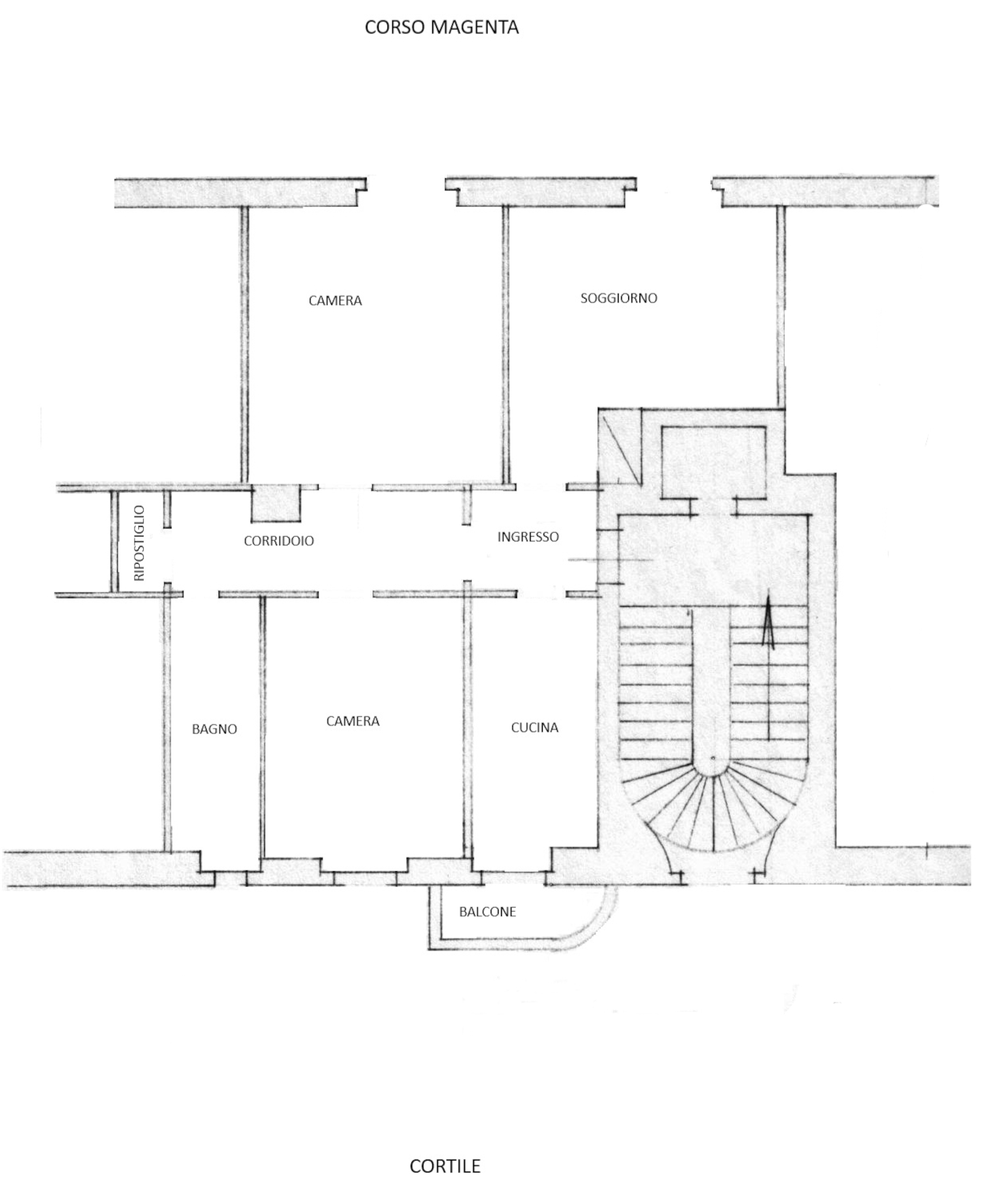
Corso Magenta/ Via Carducci. A poca distanza dalla stazione dei treni e della metropolitana Cadorna, in palazzo signorile, luminoso appartamento piano 4°, mq 90. Ingresso, ampio soggiorno, cucina abitabile con balcone, 2 camere matrimoniali, bagno, ripostiglio. Riscaldamento centralizzato e predisposizione aria condizionata. L’appartamento viene affittato vuoto, privo di cucina. Servizio di portineria intera giornata. Contratto 4+4. Canone annuo € 24.000 (canone mensile € 2.000) + spese annue € 3.600 ca (spese mensili € 300 ca). Classe energetica F. Già disponibile.
Nel cuore di Milano, l’area Corso Magenta, Piazza Conciliazione e la meravigliosa Santa Maria delle Grazie si distingue come angolo esclusivo di bellezza e raffinatezza. Zona residenziale di alto livello con magnifici palazzi storici, rappresenta la perfetta fusione di storia, arte e modernità.
Passeggiando lungo Corso Magenta, si è avvolti in un’atmosfera di eleganza, dove boutique di lusso, gallerie d’arte e ristoranti si sposano perfettamente con la serenità del carattere residenziale. Ad aumentare il fascino la Basilica di Santa Maria delle Grazie, patrimonio dell’umanità UNESCO, ospita il famosissimo dipinto “Ultima cena” di Leonardo Da Vinci, unendo arte, storia e cultura in un’unica dimensione.
Piazza Conciliazione, offre fascino storico e un lifestyle moderno e sofisticato, oltre alla vicinanza a scuole internazionali, istituzioni culturali e ai principali centri di interesse di Milano.
- Superficie (mq)90
- N. locali3
- Camere da letto2
- Bagni1
- Classe energeticaF
- Piano4
- Balcone/Terrazzosi
