- Descrizione
- Caratteristiche
- Mappa
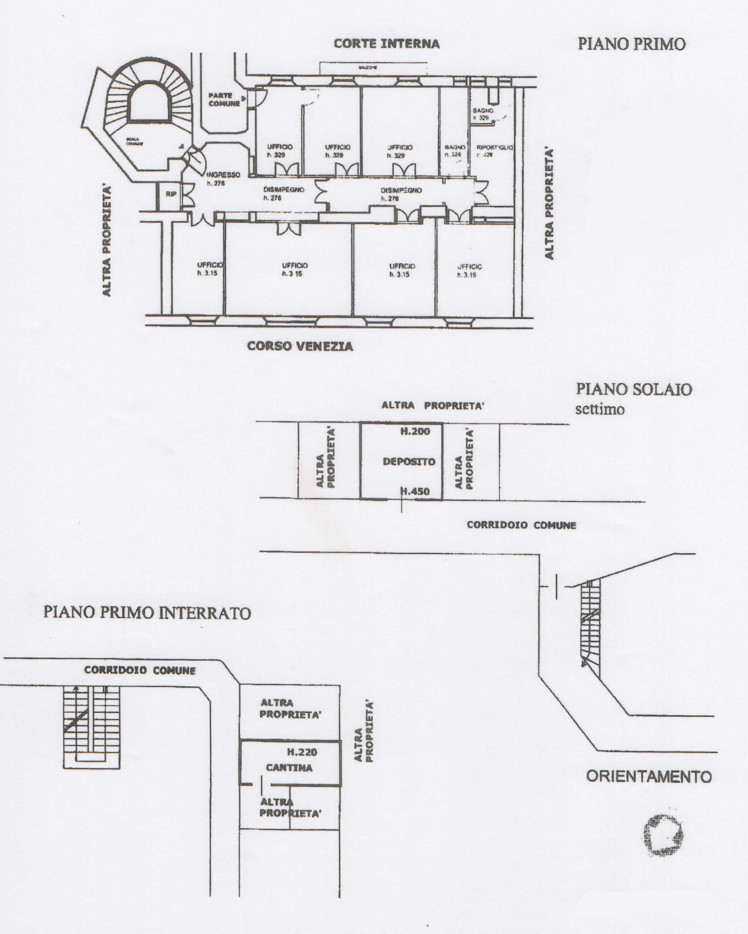
Corso Venezia. In uno dei tratti più eleganti e iconici di Corso Venezia, all’interno di un palazzo d’epoca esclusivo con parti comuni finemente conservate, ufficio di rappresentanza piano 1°, mq 232. Ambiente raffinato, ideale per studi professionali, società di alto profilo o sedi direzionali che desiderano un contesto di assoluto pregio.
L’ufficio si estende su una superficie ampia e funzionale, articolata in 7 locali, una cucina, 2 servizi, oltre a un balcone. Molto luminoso. Riscaldamento centralizzato e aria condizionata autonoma. Completano la dotazione un solaio/deposito e una cantina, perfetti come spazi di archivio e supporto operativo.
L’atmosfera del palazzo, caratterizzata da dettagli d’epoca e da una cura architettonica rara, contribuisce a creare un’immagine professionale distintiva e di grande rappresentanza. Servizio di portineria intera giornata. Canone annuo € 99.000 (canone mensile € 8.250,00)+ spese annue € 10.000 ca (spese mensili € 830 ca) . Classe energetica non disponibile. Già disponibile.
GUARDA IL VIDEO
- Superficie (mq)232
- N. locali7
- Bagni2
- Classe energeticanon disponibile
- Piano1
- Balcone/Terrazzosi
