- Descrizione
- Caratteristiche
- Mappa
Via Donizetti. All’interno di un affascinante stabile Liberty dei primi del ’900 con servizio di portineria, elegante spazio ad uso ufficio e magazzino, piano giardino, mq 260. Ristrutturato e inserito nel tranquillo contesto del cortile interno.
L’unità si sviluppa su tre livelli e si distingue per l’originalità degli ambienti e per il perfetto equilibrio tra elementi storici e funzionalità contemporanea.
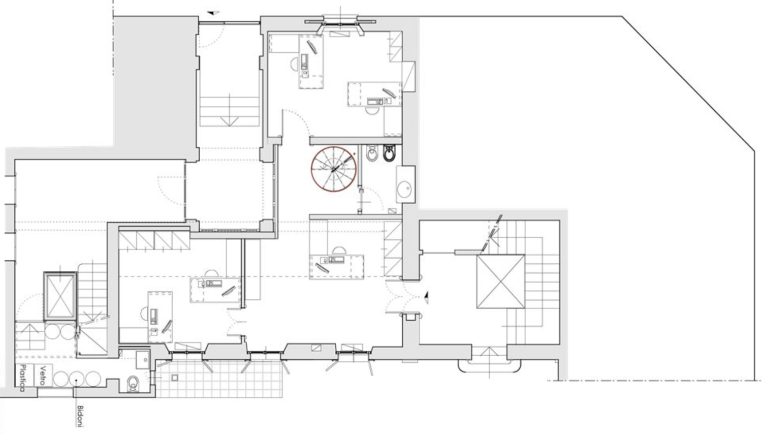
Il piano terra, di circa mq 120, accoglie 3 locali oltre a bagno e soppalco, con spazi ariosi e ben organizzati.
Il piano seminterrato, di circa mq 140, ospita 5 locali aggiuntivi oltre a bagno, caratterizzati da suggestive volte a botte originali, che conferiscono all’ambiente un’atmosfera unica e distintiva.
La presenza di due ingressi indipendenti, uno al piano rialzato e uno al piano seminterrato, garantisce flessibilità e praticità di utilizzo.
L’immobile è dotato di riscaldamento centralizzato, aria condizionata e acqua calda autonome, oltre a pavimenti in parquet, elementi che contribuiscono a creare un ambiente professionale di alto livello, ideale per studi creativi, showroom o attività direzionali.
Canone annuo € 45.000 (canone mensile € 3.750) + spese condominiali annue € 9.000 ca. (spese mensili € 750 ca.), salvo conguaglio, oltre IVA e rimborso IMU pari a € 4.198. Contratto 6+6. Classe energetica E. Già disponibile.
La posizione rappresenta un ulteriore punto di forza. Via Donizetti si colloca in una delle zone più eleganti e centrali di Milano. A breve distanza da Porta Venezia e dal Quadrilatero della Moda, in un contesto ricco di attività professionali, servizi e collegamenti.
Le fermate della metropolitana MM1 San Babila e MM4 Piazza Tricolore e i mezzi di superficie nelle immediate vicinanze garantiscono un accesso rapido e agevole a tutta la città.
Una soluzione di grande fascino, ideale per chi desidera uno spazio di lavoro rappresentativo, originale e perfettamente inserito in uno dei contesti più prestigiosi di Milano.
- Superficie (mq)260
- N. localiPlurilocale
- Bagni2
- Classe energeticaE
- PianoGiardino
