- Description
- Features
- Map
Matteo Bandello Street.
: one on the mezzanine floor and one on the garden floor, also accessible by condominium lift.
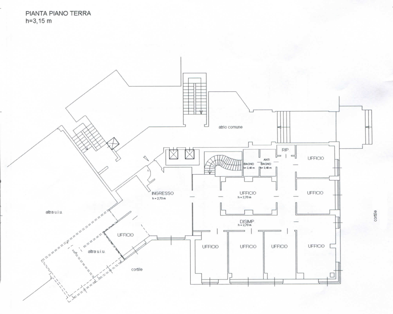
The unit is on the mezzanine floor with an entrance hall, 6 offices, 2 meeting rooms and 2 services. On the garden floor we find 4 further offices, server/archive area and further services. Double exposure.
The rooms, very well finished, feature valuable details such as boiserie in the meeting rooms and designer furnishings that may be available.
Equipped with independent hot/cold ducted air conditioning system and central heating with thermovalves. The property includes 2 cellars and double garages. Request € 3.500.000. Energy class G.
An ideal solution for professional firms or companies that want an exclusive, functional and highly representative headquarters in one of the most popular areas of the city.
- Surface (sqm)500
- N. local pluri
- Bathroomspluri
- Energy ratingG
- Floorground floor
- Boxyes
